Project Description
La Bonaigua
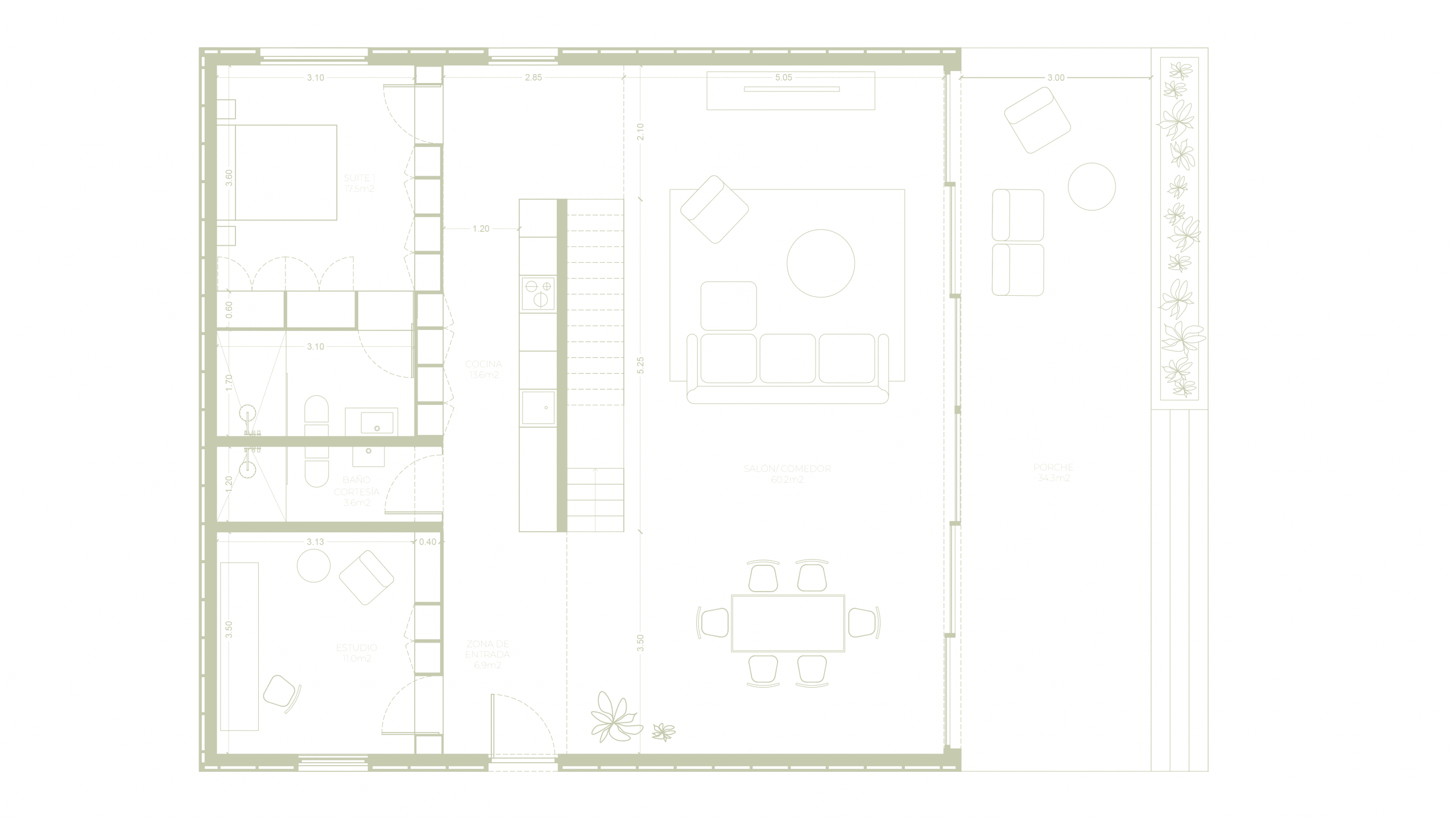
200 m2
5 persones
Passivhaus
Noblesa · Racional · Urbana
Noblesa Racional Urbana

Sobre La Bonaigua
La Bonaigua és una casa de fusta moderna situada en nucli urbà, sent una llar que inspira i motiva a viure de manera única i especial a la ciutat.
Els seus tons ataronjats i verds a l'interior són una mostra de la passió i l'energia que flueix en cada racó, una decoració que aporta una sensació d'alegria i confort.
La vidriera que s'obre cap a l'exterior és una finestra al món, una connexió que permet gaudir de la llum natural i de l'aire fresc. Aquest element proporciona una sensació de llibertat, d'espai i d'amplitud, permetent als habitants gaudir de la ciutat des de la comoditat de la seva llar.
La Bonaigua és un habitatge que convida a somiar i a viure plenament, on es poden crear records inoblidables.
És un lloc per enamorar-se i mai voler marxar!
Construcció passivhaus
Construïda íntegrament amb fusta de pi i revestiments ecològics, a més d'incloure conceptes d'arquitectura bioclimàtica, aprofitant els recursos de la naturalesa i el seu entorn.
Estructura i instal·lacions
Estructura primària formada per entramat lleuger de fusta de pi C24 i estructura secundària formada per bigues i pòrtics de fusta laminada encolada. Aïllament ecològic de fibra de fusta de 140 mm de gruix.
La climatització es compon d'equip de aerotermia amb sòl radiant i refrescant, secundat amb la generació de plaques solars fotovoltaiques.
La qualitat de l'aire interior està garantida amb un sistema de ventilació amb recuperador de doble flux.
Sistema de recuperació d'aigua de pluja i dipòsit per al seu aprofitament.
Acabats
Per al revestiment exterior s'utilitza un sistema SATE amb acabat de morter de calç. El revestiment interior es compon d'un extradossat de plaques d'argiles naturals, acabades amb pintures a la calç i no emisivas per als seus habitants.
Carpinteria de fusta amb triple vidre, control solar + baixa emissivitat i cambra amb gas d’argó.
Fabricació i muntatge
El temps estimat de fabricació i muntatge és aproximadament de 6 mesos, incloent-hi el temps de preparació de la documentació tècnica, la industrialització en fàbrica, el muntatge i els acabats.
Preu: A consultar
El preu del model pot variar considerablement en funció de les prestacions, les instal·lacions i els acabats seleccionats. Es recomana consultar-ho amb el nostre departament tècnic.
Si t'interessa el model Bonaigua o t'agradaria realitzar-li algun canvi, posa't en contacte amb nosaltres.





